装修案例
案例信息
小区名称:
水榭春天
房屋面积:
143㎡
房屋户型:
三居室
装修风格:
轻奢风格
装修造价:
¥ 130000
设计师:
张鹏
案例简介
和大多数业主一样,装修前,本案业主也看了很多装修美图和攻略,几番斟酌后,想在极简风格的清爽感与法式线条之间找到平衡,期待混搭带来的小惊喜。生活的心应当无所畏惧,纯粹如风,生活如是,设计亦是。比起单纯的装修,我们更想要构建的是一种气质和姿态,来抒发业主的内在气质和个人追求。

厨房

厨房

儿童房

儿童房

儿童房

儿童房

卧室

卧室

衣帽间

衣帽间

卧室

卧室

门厅

门厅

餐厅

餐厅

餐厅

餐厅

客厅

客厅

客厅

客厅

客厅

客厅

客厅

客厅

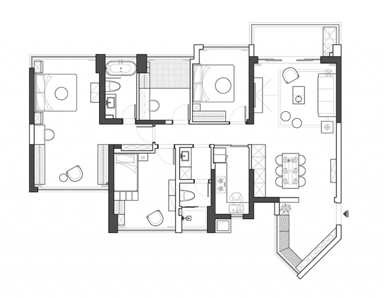
平面图

平面图

Copyright © 2025 龙发装饰 版权所有

京ICP备13015127号-1

×
免费获取装修报价